Prix
183 876€  (TVA 20%)
160 892€  (TVA 5%)
Type
Appt. au 1er
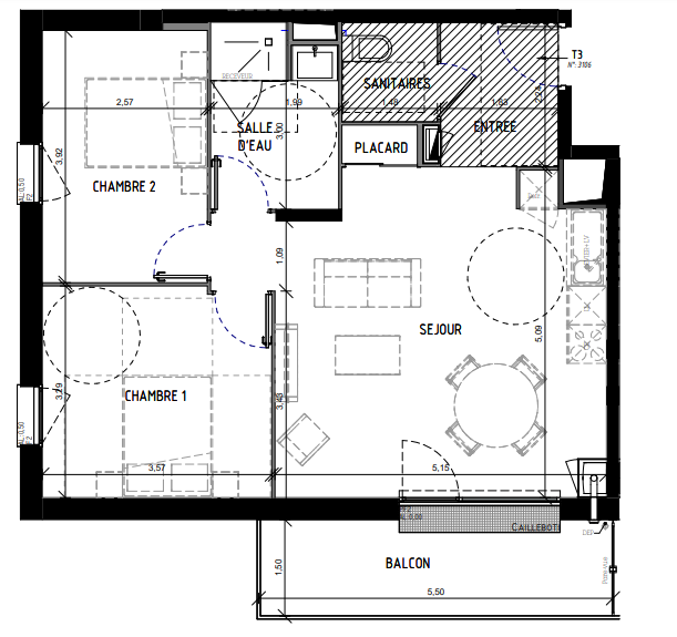
Pièces
T3
Surface
60 m²
Exposition
Sud
Ville
Val-de-Reuil (27100)
Livraison
4ème trimestre 2026
Informations
01 81 80 39 10

Présentation du programme "RESIDENCE VALVERT"

Découvrez la nouvelle résidence à Val-de-Reuil, au coeur du département de l'Eure, la ville est à mi-chemin entre Paris et Rouen. Elle propose 40 appartements neufs de 2 et 3 pièces, avec un espace de vie extérieur : terrasse, balcon. La résidence idéalement située à proximité du centre-ville et à quelques pas de la gare SNCF (axe Paris Saint-Lazare-Rouen-Le Havre), offre un accès rapide aux commerces et aux différentes animations. Pour habiter, profitez du Prêt à Taux Zéro et de la TVA réduite (5.5%). Pour investir, profitez de la dernière année pour défiscaliser avec le dispositif Pinel + ! Soyez les premiers informés, prenez contact avec notre conseiller immobilier pour une étude de financement personnalisée ! Pour toutes informations complémentaires, prenez contact avec nous !

Autres logements T3 du programme "RESIDENCE VALVERT"

Disponibilité Prix Genre Pièces Surface Étage
Voir
Disponible
188 820€ Appt. T3 62m2 2ème